Là một trong những sản phẩm chủ lực của BestReals trong năm 2020, Khu Biệt Thự La Rivière đang dần HOT hơn bao giờ hết và trở thành BĐS hấp dẫn nhất hiện nay với nhiều ưu điểm vượt trội so với các BĐS cùng loại:
THÔNG TIN CHI TIẾT
Khu Biệt Thự La Rivière có vị trí đắc địa “Kề Giang – Cận Hải” ngay trên bán đảo Bảo Ninh (Đồng Hới, Quảng Bình), bên dòng sông Nhật Lệ giao thoa cửa Biển. Nhờ lợi thế vị trí, dự án có phong thủy tốt, giúp khơi thông nguồn vượng khí, mang đến tài lộc và may mắn. Tại La Rivière, chủ nhân tương lai có thể dễ dàng di chuyển đến trung tâm thành phố và các tuyến giao thông huyết mạch cho mọi điểm đến:
LIÊN KẾT VÙNG HOÀN HẢO
LIÊN KẾT CÁC ĐIỂM DU LỊCH NỔI TIẾNG

Ví như vì tinh tú tại Bán đảo Bảo Ninh, Khu Biệt Thự La Rivière với quy mô 59 biệt thự view Sông, xây dựng 03 tầng theo lối kiến trúc hoài cổ đậm “bản sắc riêng" sẽ là cảm hứng bất tận, đồng thời khẳng định đẳng cấp thượng lưu cho chủ nhân khi sinh sống tại đây.
MẶT BẰNG TỔNG THỂ

MẶT BẰNG NHÀ MẪU

Mẫu mặt bằng tầng 1 biệt thự La Rivière

Mẫu mặt bằng tầng 2 biệt thự La Rivière

Mẫu mặt bằng tầng 3 (mẫu 1) biệt thự La Rivière

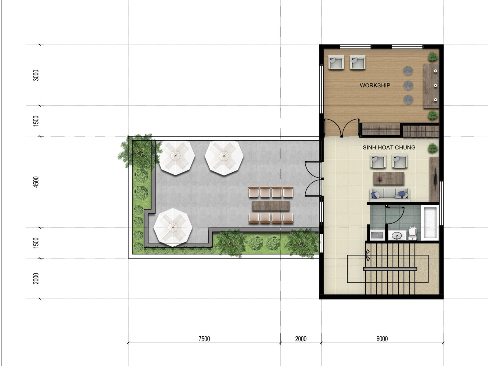
Mẫu mặt bằng tầng 3 (mẫu 2) biệt thự La Rivière

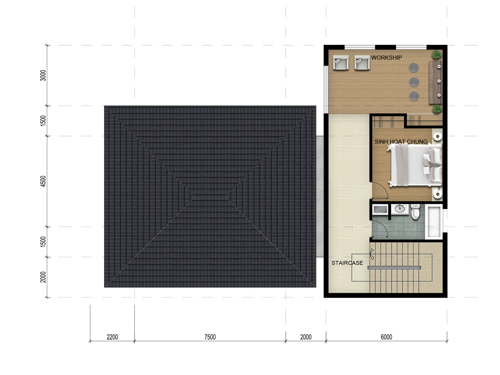
Mẫu mặt bằng tầng 3 (mẫu 3) biệt thự La Rivière
Không chỉ là một nơi để sống, Khu Biệt Thự La Rivière còn là một khu biệt thự đẳng cấp - khẳng định đẳng cấp thượng lưu của chủ sở hữu với vô vàn tiện ích 5 sao nội khu từ Sun Spa Resort và chuỗi tiện ích xã hội cận kề từ trung tâm TP. Đồng Hới hiện đại
TIỆN ÍCH NỘI KHU
TIỆN ÍCH XÃ HỘI
CHÍNH SÁCH THANH TOÁN
| Phương án | Thời hạn thanh toán | Chiết khấu | Ghi chú |
| Phương án 1: 1 tháng | Đặt cọc 500.000.000 VNĐ/ sản phẩm | 8% | |
| Lần 1: Thanh toán 50% giá trị hợp đồng trong vòng 07 ngày kể từ ngày chấp nhận đặt cọc | Bao gồm tiền đặt cọc | ||
| Lần 2: Thanh toán 50% giá trị hợp đồng trong vòng 01 tháng kể từ ngày đặt cọc và đồng thời làm thủ tục CC HĐCN QSDĐ và Bàn giao sản phẩm | CC HĐCN QSDĐ và Bàn giao sản phẩm | ||
| Phương án 2: 28 tháng | Đặt cọc 500.000.000 VNĐ/ sản phẩm | N/A | |
| Lần 1: Thanh toán 30% giá trị hợp đồng trong vòng 07 ngày kể từ ngày chấp nhận đặt cọc | Bao gồm tiền đặt cọc | ||
| Lần 2: Thanh toán 10% giá trị hợp đồng sau 04 tháng kể từ ngày ký đặt cọc | |||
| Lần 3: Thanh toán 10% giá trị hợp đồng sau 08 tháng kể từ ngày ký đặt cọc | |||
| Lần 4: Thanh toán 10% giá trị hợp đồng sau 12 tháng kể từ ngày ký đặt cọc | |||
| Lần 5: Thanh toán 10% giá trị hợp đồng sau 16 tháng kể từ ngày ký đặt cọc | |||
| Lần 6: Thanh toán 10% giá trị hợp đồng sau 20 tháng kể từ ngày ký đặt cọc | |||
| Lần 7: Thanh toán 10% giá trị hợp đồng sau 24 tháng kể từ ngày ký đặt cọc | |||
| Lần 8: Thanh toán 10% giá trị hợp đồng sau 28 tháng kể từ ngày ký đặt cọc | CC HĐCN QSDĐ và Bàn giao sản phẩm | ||
| Phương án 3: Vay ngân hàng | Đặt cọc 500.000.000 VNĐ/ sản phẩm | N/A | |
| Lần 1: Thanh toán 50% giá trị hợp đồng trong vòng 07 ngày kể từ ngày chấp nhận đặt cọc | Bao gồm tiền đặt cọc | ||
| Lần 2: Ngân hàng hỗ trợ cho vay 50% / lãi suất 0% trong 24 tháng đồng thời làm thủ tục CC HĐCN QSDĐ | CC HĐCN QSDĐ và Bàn giao sản phẩm |